Что включает в себя полный дизайн проект квартиры: пошаговый разбор

Вы когда-нибудь смотрели на красивую квартиру в журнале и думали: «Как они это сделали?» - а потом понимали, что там не просто красивая мебель и светильники, а целая система, продуманная до мелочей? Это и есть дизайн проект квартиры. Не просто эскизы, не просто подбор цветов. Это технический документ, который превращает вашу идею в реальность - без переделок, без переплат и без стресса.

Что такое полный дизайн проект и зачем он нужен?

Полный дизайн проект - это не набор красивых картинок. Это инструкция, по которой строители, электрики, сантехники и мебельщики будут работать. Без него вы рискуете получить квартиру, которая выглядит хорошо на фото, но в которой не работает розетка под телевизор, не хватает места для хранения, а в ванной - два сантиметра между душем и дверью.

В Томске, где многие живут в панельных домах с нестандартными планировками, полный проект - это не роскошь, а необходимость. Без него вы потратите в два раза больше времени и денег на переделки. А с ним - всё будет на месте, как в часах.

Этап 1: Замер и анализ исходного состояния

Всё начинается не с эскизов, а с замера. Не «примерно», а с точностью до миллиметра. Стен, окон, дверей, радиаторов, вентиляционных шахт, инженерных коммуникаций. Всё. Даже то, что за фальшстеной.

Замер - это не просто рулетка. Это фиксация:

  • Геометрии комнат - насколько они кривые, есть ли перепады по полу и потолку
  • Места прохода труб, проводов, вентиляции
  • Расположения несущих стен и перегородок
  • Технических ниш, выступов, скрытых дверей

Потом - анализ. Что можно снести? Что нельзя трогать? Где проходят стояки? Где можно перенести санузел? Без этих данных даже самый талантливый дизайнер рискует сделать проект, который невозможно реализовать.

Этап 2: Планировка - основа всего

Здесь решается, как будет жить ваша квартира. Не как вы представляете, а как будет работать на практике. Планировка - это не просто перестановка стен. Это распределение зон, движение людей, доступ к свету, шумоизоляция, вентиляция.

Например:

  • Кухня - не должна быть прямо напротив входа, если вы не хотите, чтобы гости видели, как вы моете посуду
  • Спальня - не должна граничить с туалетом или кухней по стене, иначе ночью будет слышен шум воды
  • Детская - должна быть вдали от шумных зон, но рядом с родительской спальней для удобства

В планировке указываются:

  • Конкретные размеры всех помещений после перепланировки
  • Места дверей и проемов - с указанием направления открывания
  • Расположение перегородок - несущие, легкие, звукоизолирующие
  • Места для встроенной мебели - шкафы, ниши, тумбы

Этот этап - самый важный. Если он сделан плохо, всё остальное - красивая обертка.

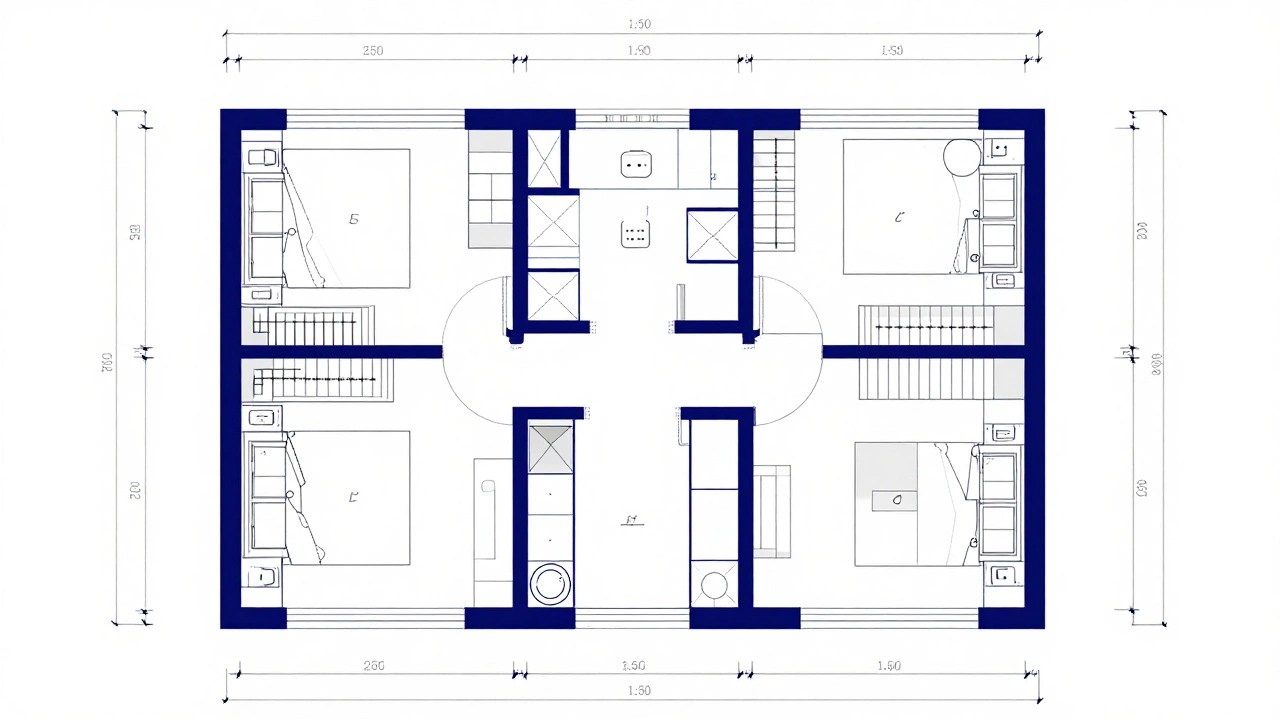
Этап 3: Технические чертежи

Теперь - от «что» к «как». Здесь начинается работа инженеров. В проекте появляются:

  • Электрика: схема разводки розеток, выключателей, светильников, точек для ТВ, интернета, умного дома. Указаны высоты установки, мощности, типы кабелей, места для щитков.
  • Водоснабжение и канализация: где будут стояки, куда идут трубы, как устроен слив в ванной, где находится сифон, как подключается стиральная машина, где - бойлер.
  • Отопление и вентиляция: расположение радиаторов, труб, вентканалов, мест для вытяжек и приточных систем.

Эти чертежи не для красоты - они нужны строителям. Без них электрик может поставить розетку там, где потом будет стоять шкаф. Сантехник - не учтет, что труба проходит под полом, и просверлит в ней отверстие. Такие ошибки - это тысячи рублей на переделку.

Технический план квартиры с обозначенными перепланировками, электрикой и сантехникой в масштабе 1:50.

Этап 4: 3D-визуализации и материалы

Теперь вы видите, как будет выглядеть квартира. Не в воображении, а в реальном 3D-изображении - со светом, текстурами, мебелью. Это не просто картинки. Это ваша возможность увидеть, как будет смотреться бежевый пол с серыми стенами при утреннем свете. Понять, хватит ли света в углу, или нужно добавить лампу.

В проект включаются:

  • Фото-реалистичные визуализации каждой комнаты - с разных ракурсов
  • Список материалов: тип плитки, ламината, краски, обоев, плинтусов - с марками и артикулами
  • Список мебели - встроенной и корпусной - с размерами и производителями
  • Список светильников - с типами ламп, цветовой температурой, мощностью

Здесь важно: не просто «белая кухня», а «кухня с фасадами из МДФ с лаком Gloss White, артикул 1245-Б, производитель «Арт-Мебель»». Без этого мебельщик не поймет, что вам нужно.

Этап 5: Смета и спецификация

Всё, что вы увидели - всё это стоит денег. Смета - это не «примерно 800 тысяч», а точный расчет по каждому этапу:

  • Снос перегородок - сколько кубометров, сколько мусора, сколько вывоза
  • Штукатурка - по квадратным метрам, с учетом уровня выравнивания
  • Укладка плитки - по площади, с учетом резки, подрезки, запаса
  • Электромонтаж - по точкам, по типам кабелей, по глубине штроб
  • Мебель - по каждой единице, с учетом доставки и сборки

Спецификация - это список всех материалов и комплектующих с артикулами, производителями, количеством. Без неё вы не сможете купить всё в одном месте. И не сможете контролировать, что вам привезли.

Этап 6: Рабочая документация для строителей

Это то, что отдается бригаде. Не визуализации, не эскизы - а технические чертежи, на которых видно:

  • Где делать штробы под провода
  • Какие трубы куда идти
  • Где делать ниши под встраиваемую технику
  • Какие двери и в какую сторону открывать
  • Где делать подиумы, подвесные потолки, гипсокартонные конструкции

Здесь всё - в масштабе 1:50 или 1:20. Без лишних деталей, только то, что нужно для работы. Это не для вас - это для тех, кто будет копать, сверлить, клеить, монтировать.

3D-визуализация современной гостиной с деревянным полом, серыми стенами и кухонным островом под утренним светом.

Почему нельзя обойтись без полного проекта?

Многие думают: «Я и так знаю, что хочу». Но когда вы говорите «нужна кухня с островом», вы не представляете, что:

  • Остров требует отдельного электропитания
  • Нужен отдельный слив под мойку
  • Нужно оставить 90 см прохода с каждой стороны
  • Он не поместится, если в квартире 5,5 метра в ширину

Без проекта вы получите:

  • Переделки - и это +30-50% к бюджету
  • Потерянное время - строители просто ждут, что вы решите
  • Некачественные работы - потому что никто не знает, что от них требуется
  • Стресс - потому что всё идет не так, как вы представляли

Полный дизайн проект - это страховка. Он не гарантирует идеальный результат, но гарантирует, что вы не будете разбирать стены через полгода.

Сколько стоит полный дизайн проект?

В Томске в 2026 году цена зависит от площади и сложности:

  • 1-комнатная - от 40 000 рублей
  • 2-комнатная - от 65 000 рублей
  • 3-комнатная - от 90 000 рублей
  • Больше 100 м² или с перепланировкой - от 120 000 рублей

Это не цена на эскизы. Это цена на документы, которые вы сможете использовать как договор с подрядчиком. Если вам предлагают «дизайн за 15 000» - это только визуализации. Без чертежей, без сметы, без технических решений. Это не проект. Это украшение.

Что делать, если бюджет ограничен?

Если вы не можете позволить себе полный проект - не делайте ничего. Лучше сделать минимальную перепланировку и дождаться денег. Но если вы всё же хотите начать - запросите только:

  • Планировку с размерами
  • Схему электрики и сантехники
  • Список материалов и мебели

Это сэкономит вам 50-70% от полной стоимости, но даст основу. Остальное - можно делать по мере поступления денег.

Как выбрать дизайнера?

Смотрите не на портфолио. Смотрите на документы. Попросите пример полного проекта - с чертежами, сметой, спецификацией. Если дизайнер говорит: «У меня только фото», - бегите.

Спросите:

  • Сколько проектов вы сделали в панельных домах?
  • Какие ошибки чаще всего допускают строители в Томске?
  • Можете ли вы сопровождать стройку и вносить корректировки?

Хороший дизайнер - не художник. Он - координатор. Он знает, как сделать так, чтобы ваша квартира не превратилась в «дизайн-катастрофу».